46th St Multi-Family
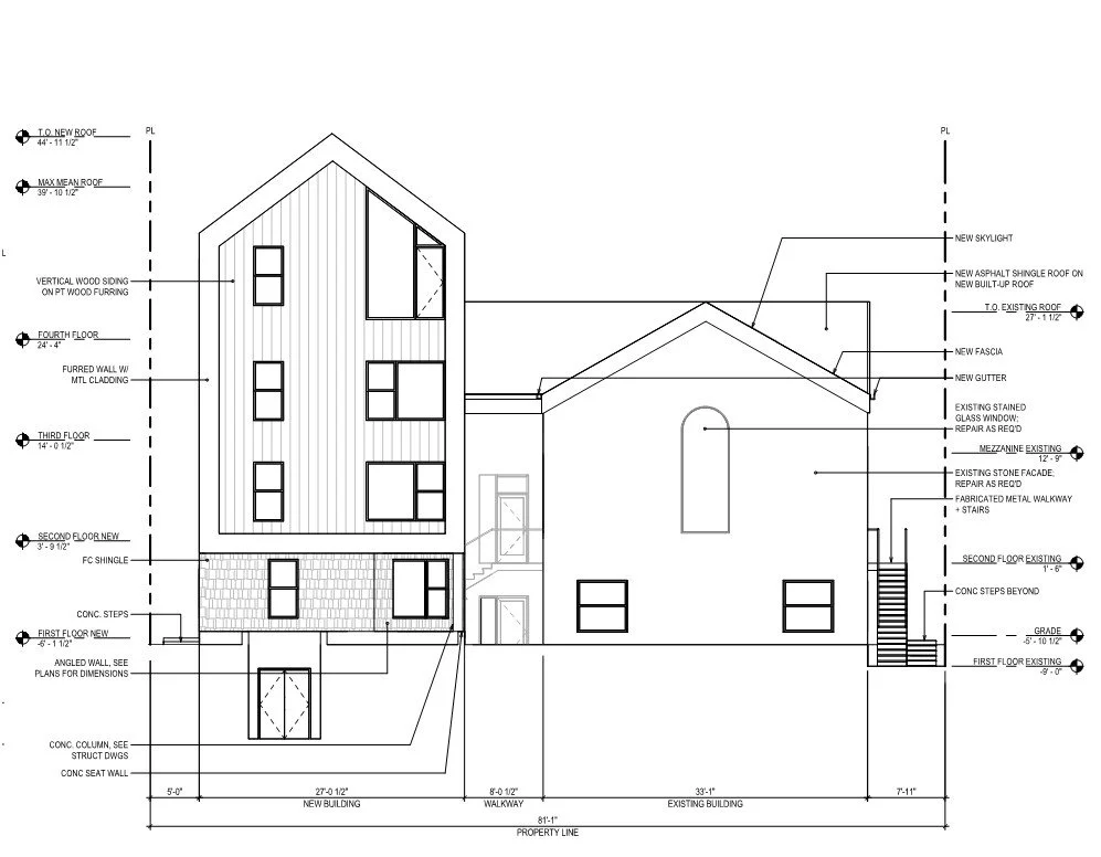
Adaptive reuse of a former church and site into 23 apartments.
Images courtesy of ISA
Adaptive reuse of a former church and site into 23 apartments.
Images courtesy of ISA